6080新视觉电影理论电视剧女士的品格-60岁阿姨大人免费观看电视剧下载-6080新视觉影视电影高清在线观看-6996电视影片免费人数2024年

CASE 辦公室裝修設計

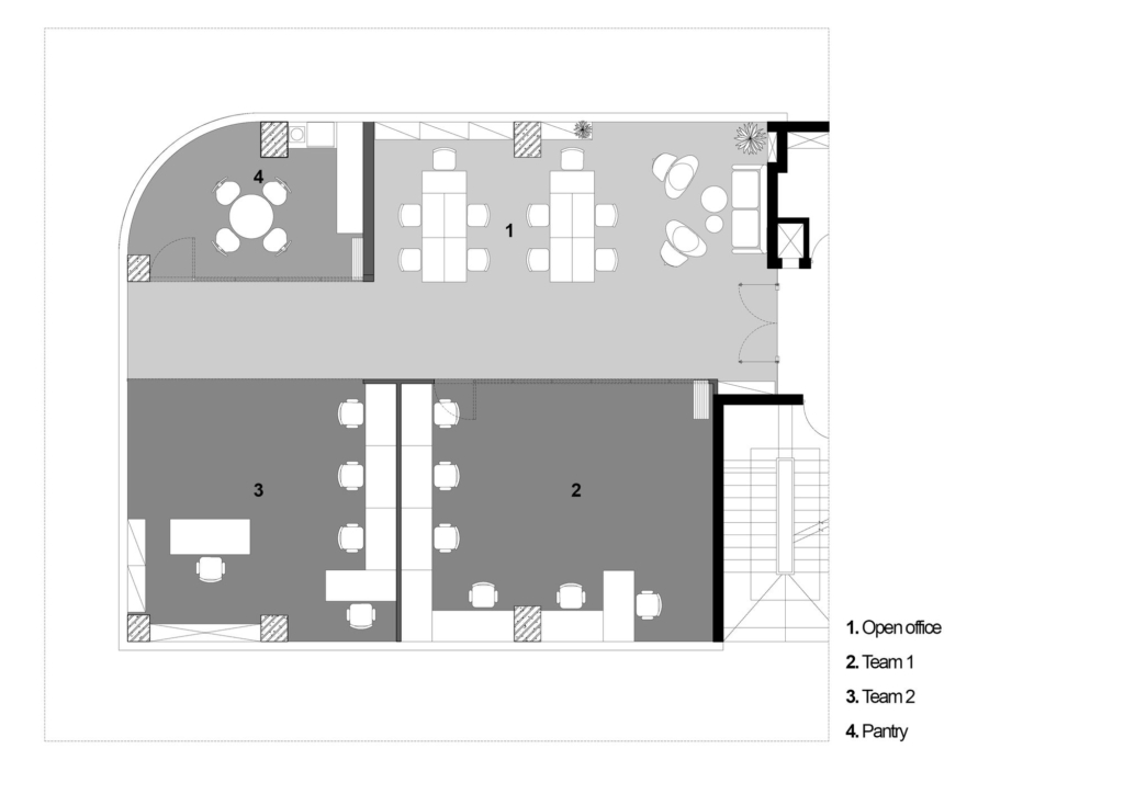
鄭州辦公室設計 >> 辦公室裝修設計 >>200平米金融公司辦公室裝修設計

200平米金融公司辦公室裝修設計

2023-08-21 159 預約參觀

千舟裝飾是一家專業的辦公室裝修設計設計公司,提供辦公室裝修設計設計與裝修施工服務!辦公室裝修設計案例專區推薦200平米金融公司辦公室裝修設計,200平米金融公司辦公室效果圖,鄭州二七區辦公室裝修設計方案、金融公司辦公室效果圖、200平米金融公司辦公室施工報價明細!

200平米金融公司辦公室裝修設計


項目名稱金融公司辦公室

項目地址::鄭州二七區

項目面積::200平米

設計介紹 : 千舟設計

在線預約設計師

請輸入您的稱呼
請輸入您的手機號碼請正確輸入您的手機號碼
請輸入裝修面積

最新裝修設計資訊

RelevantCASE 相關案例

500+
客戶見證

customer service

眾多大型辦公項目案例
辦公空間綜合體實力見證
以品質贏得口碑

booking

現在預約咨詢,立即享受免費量房設計&施工報價

10秒快速在線申請

  • 請輸入空間類型
  • 請輸入建筑面積
  • 請輸入您的稱呼
  • 請輸入您的電話